Offices in Malta

OFFICES INMalta

SEARCH OFFICES

Modern Office

Ref. No: 28024

  • LOCATION: St Julians
  • Area 120 Sq metres
  • PRICE: € 1,000.00
  • Longlet: Yes
  • Property Sale: No
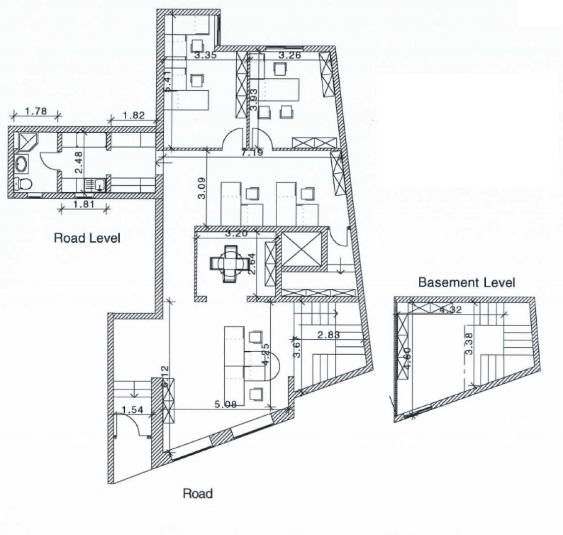
Office for Rent in St Julians Locality: St. Julians. Type: Office with class 4 use. This property has in the past been leased for architectural office, real estate office and gaming office. The block is administered by an owners’ association. The area is residential and close to all amenities. Lift: No, own road entrance Price: € 97 per sqm per year ( total area being 124 sqm) but we are open to discussions/ proposals depending on the duration of the said lease, we will require a deposit which will be refunded once the lease is over unless the clients are able to bank guarantee the lease payments for the contract period. Preferably the lease is to be paid every 3 or 6 months up front. The client would be required to insure the said property while in their possession with a local assurance company. The lease does not include the consumption of water and electricity which would need to be paid by the client. If the said meters are to remain in our name then I would also require a deposit towards such consumption and all bills to be settled with client once the bills from ARMS are received. Finishes: The office requires to be decorated and cleaned before clients make use of it, this has not been done just in case they require any alterations ect. The apartment is finished to a high standard that includes gypsum plaster, marble sills, modern gress floor tiles and skirting, all internal and Main doors, all external windows and doors in aluminum with double glazing, intercom system, water and electrical installation ( 3phase) ready, all installation of air-conditioning in place, soffits, lights and bathrooms tiles and sanitary wear installed. There is also a kitchen and some other furniture.
Modern Office
Modern Office
Modern Office
Modern Office
Modern Office
About the area: Harbour
PRICE: € 1,000.00
MORE IN THIS AREA

Enquire about this property

Our team will reach out to you as soon as possible.

    About You

    About your Property

    Offices in MaltaAdd to home screen for quick access