Offices in Malta

OFFICES INMalta

SEARCH OFFICES

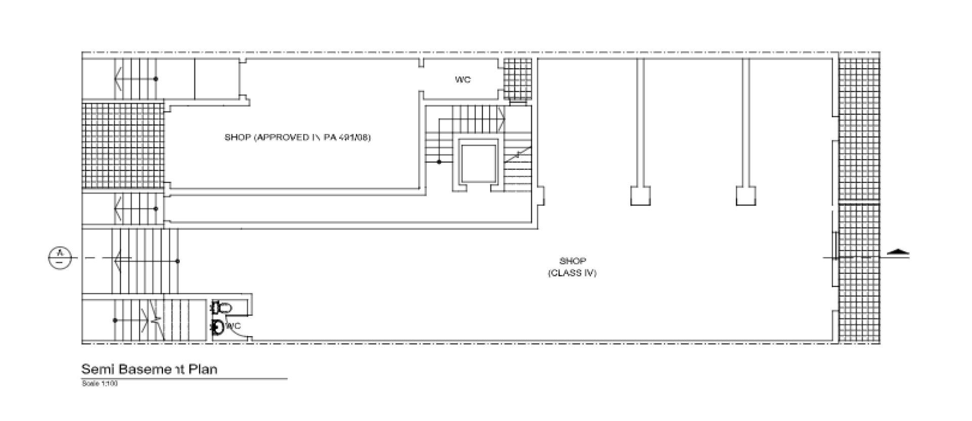
Shop

Ref. No: 37077

  • LOCATION: Msida
  • Area 180 Sq metres
  • PRICE: € 2,500.00
  • Longlet: Yes
  • Property Sale: No
Class 4 shop for rent in Msida,Malta. Class 4 Retail Premises or Office to let in Msida near the University.
Shop
Shop
Shop
Shop
Shop
Shop
Shop
Shop
Shop
Shop
About the area: Central
PRICE: € 2,500.00
MORE IN THIS AREA

Enquire about this property

Our team will reach out to you as soon as possible.

    About You

    About your Property