Offices in Malta

OFFICES INMalta

SEARCH OFFICES

Ground Floor Shop

Ref. No: 39047

  • LOCATION: Iklin
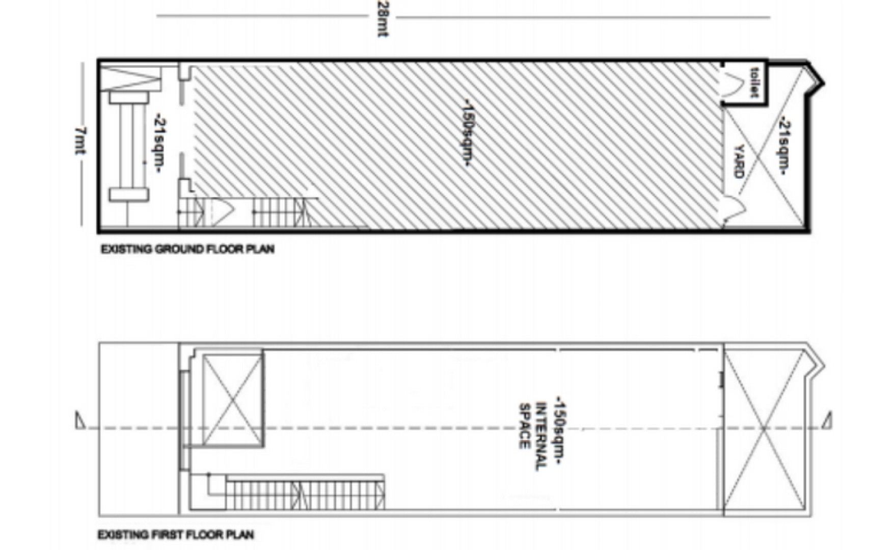
  • Area 490 Sq metres
  • PRICE: € 1,913,000.00
  • Longlet: No
  • Property Sale: Yes
New in our shops for rent in Malta, A prime Location property with continuous passing trade and great exposure. It is located at a busy intersection. It can be used as a Showroom, Retail, Clinics, Offices, Catering, Cafe, etc. The property is either available separately or in full. Currently, there is a Ground Floor, 1st, and 2nd Floors. In addition, one can develop 2 more top floors and 2 basements. This will then give the property a total of 7 floors at 1050sqm in total.
Ground Floor Shop
Ground Floor Shop
About the area: Central
PRICE: € 1,913,000.00
MORE IN THIS AREA

Enquire about this property

Our team will reach out to you as soon as possible.

    About You

    About your Property