Offices in Malta

OFFICES INMalta

SEARCH OFFICES

Restaurent

Ref. No: 40885

  • LOCATION: Mriehel
  • Area 156 Sq metres
  • PRICE: € 1,200,000.00
  • Longlet: No
  • Property Sale: Yes
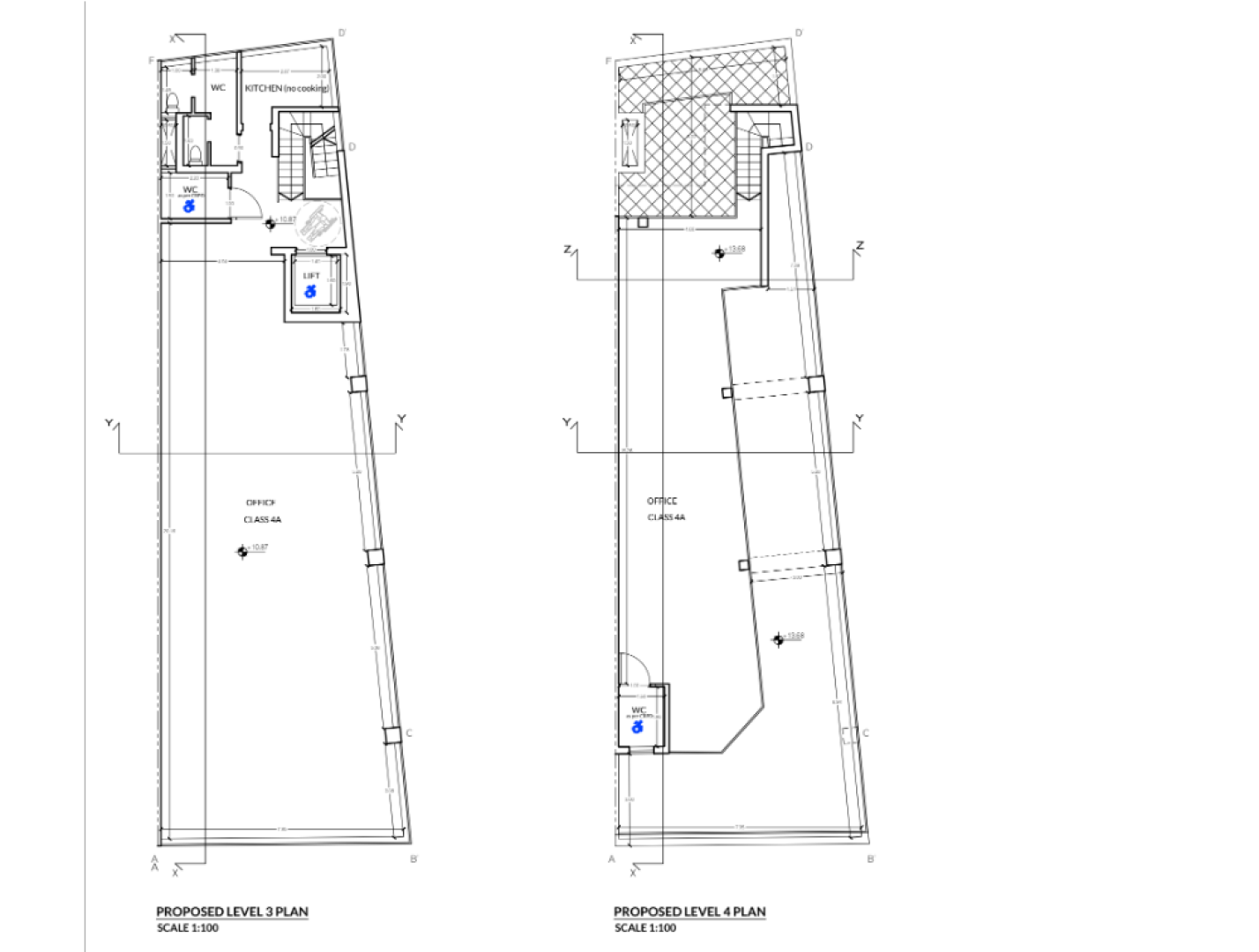
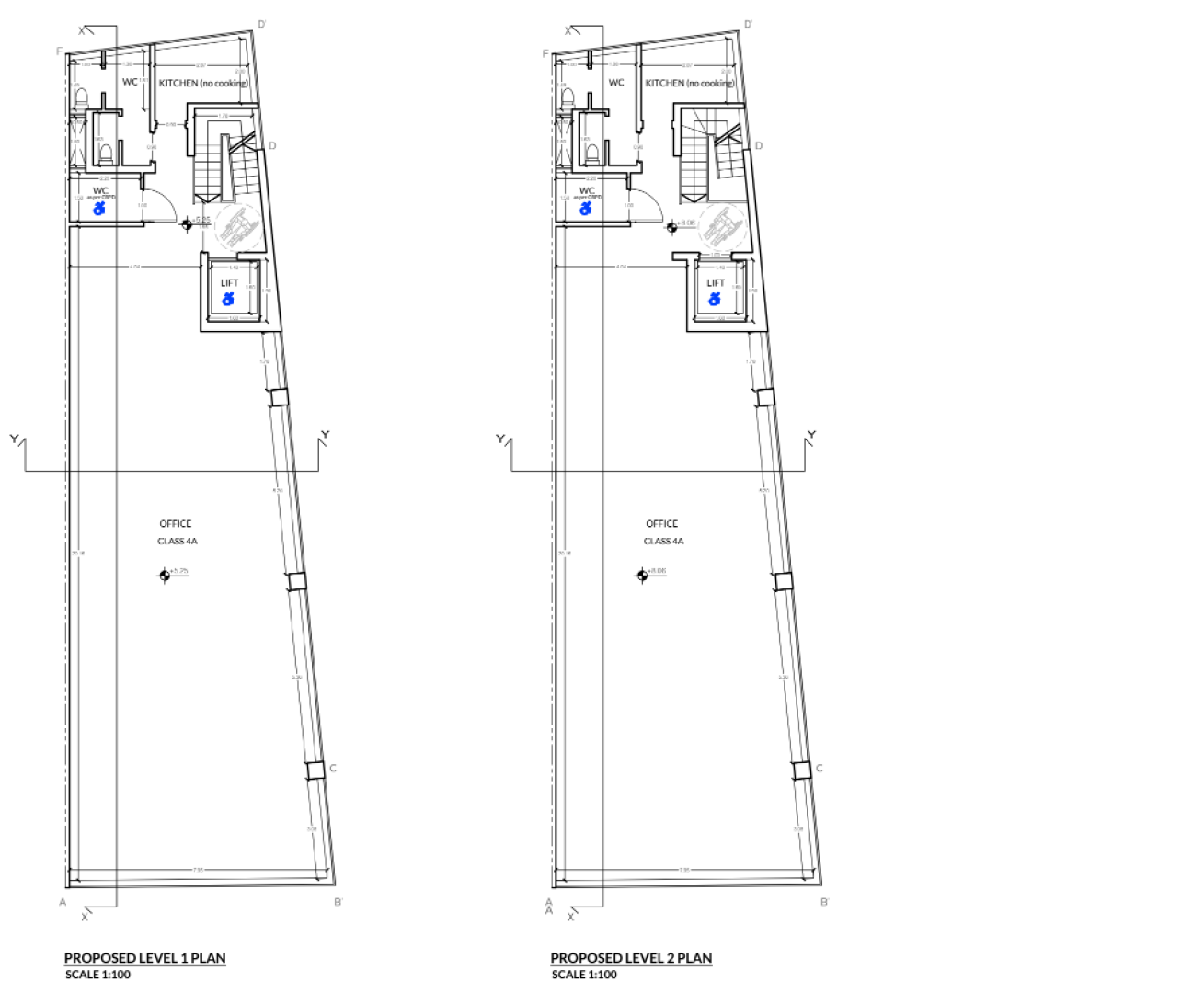
Commercial property in Malta is this premises locate in the industrial area of Imriehel. Corner on three roads with a foot print of approx.156sqm, total built up area of will consist of approx. 850 sqm. Including existing ground floor with permits approved for a restaurant, existing elevated parking, airspace to build addition 3 floor +1 receded of office space. Negotiable price! Worth for viewing!
Restaurent
Restaurent
Restaurent
Restaurent
Restaurent
About the area: Malta
PRICE: € 1,200,000.00
MORE IN THIS AREA

Enquire about this property

Our team will reach out to you as soon as possible.

    About You

    About your Property

    Offices in MaltaAdd to home screen for quick access