Offices in Malta

OFFICES INMalta

SEARCH OFFICES

Ground Floor Restaurant

Ref. No: 44161

  • LOCATION: Valletta
  • Area 230 Sq metres
  • PRICE: € 1,680,000.00
  • Longlet: No
  • Property Sale: Yes
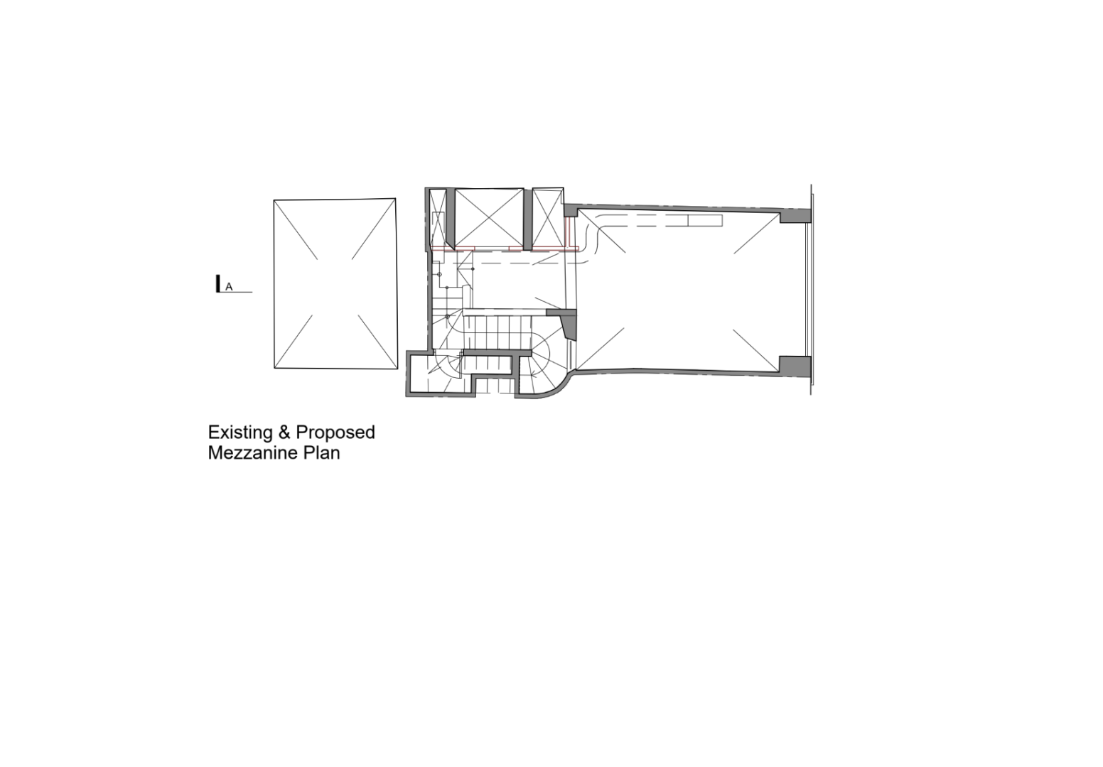
Restaurant in the heart of Valletta is brought to you from our Malta real estate agency, with a total area of 230 sq.m. spread over 5 floors and the roof: ie basement, ground floor, first floor, second floor, and third floor. We have planned the entire project meticulously which includes a large ground floor facade, a kitchen in the basement, seating areas on the ground floor and on the first, second and third floors, and two small smoking sections outside the lounge area on the ground floor and on the roof. As can be seen through our plans, this restaurant would have approximately a total of 70 covers, depending on the layout. The restaurant has 3 lifts areas in total: one passenger lift, one dumb waiter to cater for every floor and one goods lift, from ground level directly to the kitchen in the basement. This property has a full Restaurant Permit (Class 4D) and is being sold in shell form (with the masonry work all finished) and freehold. Contact us for viewing!
Ground Floor Restaurant
Ground Floor Restaurant
Ground Floor Restaurant
Ground Floor Restaurant
Ground Floor Restaurant
Ground Floor Restaurant
Ground Floor Restaurant
Ground Floor Restaurant
About the area: Central
PRICE: € 1,680,000.00
MORE IN THIS AREA

Enquire about this property

Our team will reach out to you as soon as possible.

    About You

    About your Property