Offices in Malta

OFFICES INMalta

SEARCH OFFICES

Residential Block In Prime Location

Ref. No: 50851

  • LOCATION: Floriana
  • Area 270 Sq metres
  • PRICE: € 930,000.00
  • Longlet: No
  • Property Sale: Yes
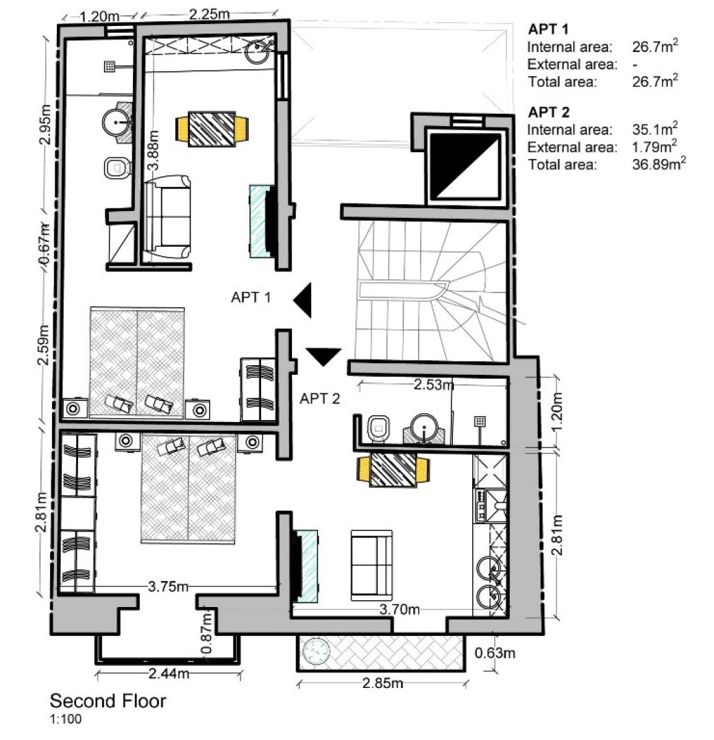
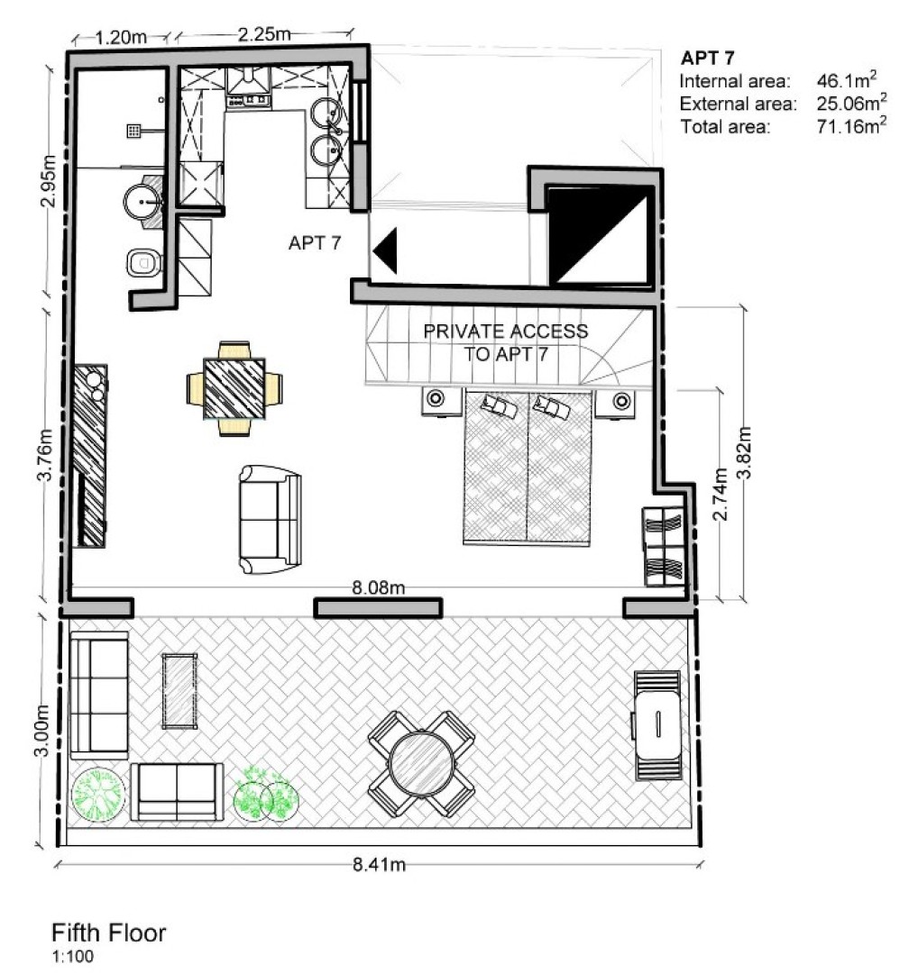
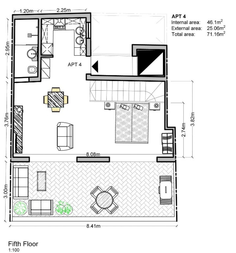
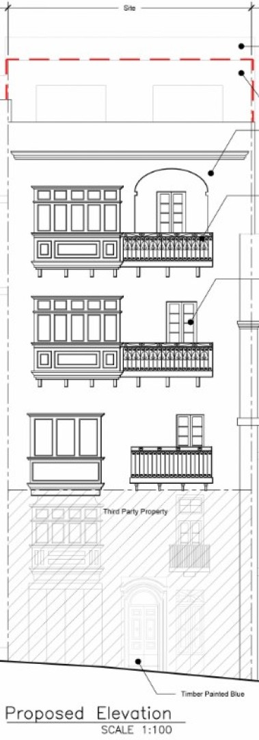
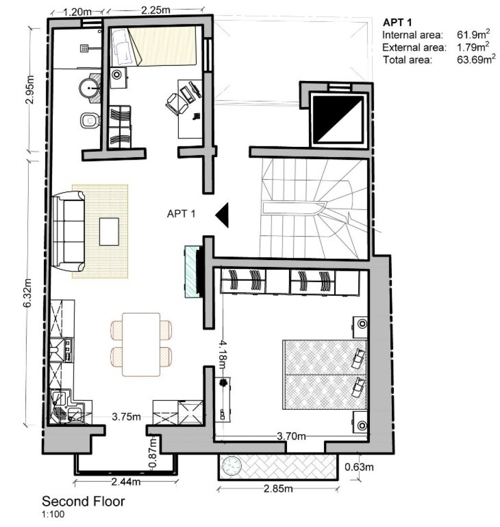
An unconverted apartment block in Floriana currently consists of 3 x 1-bedroom apartments, and an approved Planning Authority permit to construct a studio penthouse at the existing roof level, thus having a total of four (4) approved residential units. All units are very comfortable in terms of size, with the 1-bedroom apartments having a total of 64 sqm, whilst the penthouse enjoys an internal area of 46 sqm plus an additional 25 sqm of external space. It is important to note that the penthouse will enjoy very good views of the Grand Harbour, as well as clear side views stretching up to Castille Square in Valletta. A passenger lift is also approved within the proposed drawings, that goes all the way from the ground floor up to the penthouse level. It is also important to note that there are no steps whatsoever when coming into the building from the street, so the building can be made fully accessible. A second proposed layout is also in hand whereby the building can be converted into a total of seven (7) rentable units for short-let purposes, having 3 studio units with an area of 27sqm each, 3 x 1-bedroom units with an area of 37sqm each, and the same penthouse layout with a total area of 71sqm. The property needs some structural work done to repair the damaged ceilings and also to build the receded floor at the current roof level. A planning permit is already in hand and works can commence within a short period since BCA clearance was already obtained. The property is situated within just 2 minute's walk of the King George V Gardens, which has just recently undergone upgrade works, where one can enjoy spectacular views of the Grand Harbour. The Valletta Main City Gate and Valletta Waterfront are also both just a 10-minute walk away from the property, making it an ideal investment both for long-lets as well as short-lets. Contact us to arrange a viewing or for more information.
Residential Block  In Prime Location
Residential Block  In Prime Location
Residential Block  In Prime Location
Residential Block  In Prime Location
Residential Block  In Prime Location
Residential Block  In Prime Location
Residential Block  In Prime Location
Residential Block  In Prime Location
Residential Block  In Prime Location
Residential Block  In Prime Location
Residential Block  In Prime Location
Residential Block  In Prime Location
Residential Block  In Prime Location
Residential Block  In Prime Location
Residential Block  In Prime Location
Residential Block  In Prime Location
Residential Block  In Prime Location
Residential Block  In Prime Location
Residential Block  In Prime Location
Residential Block  In Prime Location
Residential Block  In Prime Location
Residential Block  In Prime Location
Residential Block  In Prime Location
Residential Block  In Prime Location
Residential Block  In Prime Location
Residential Block  In Prime Location
Residential Block  In Prime Location
Residential Block  In Prime Location
Residential Block  In Prime Location
Residential Block  In Prime Location
About the area: Central
PRICE: € 930,000.00
MORE IN THIS AREA

Enquire about this property

Our team will reach out to you as soon as possible.

    About You

    About your Property