Offices in Malta

OFFICES INMalta

SEARCH OFFICES

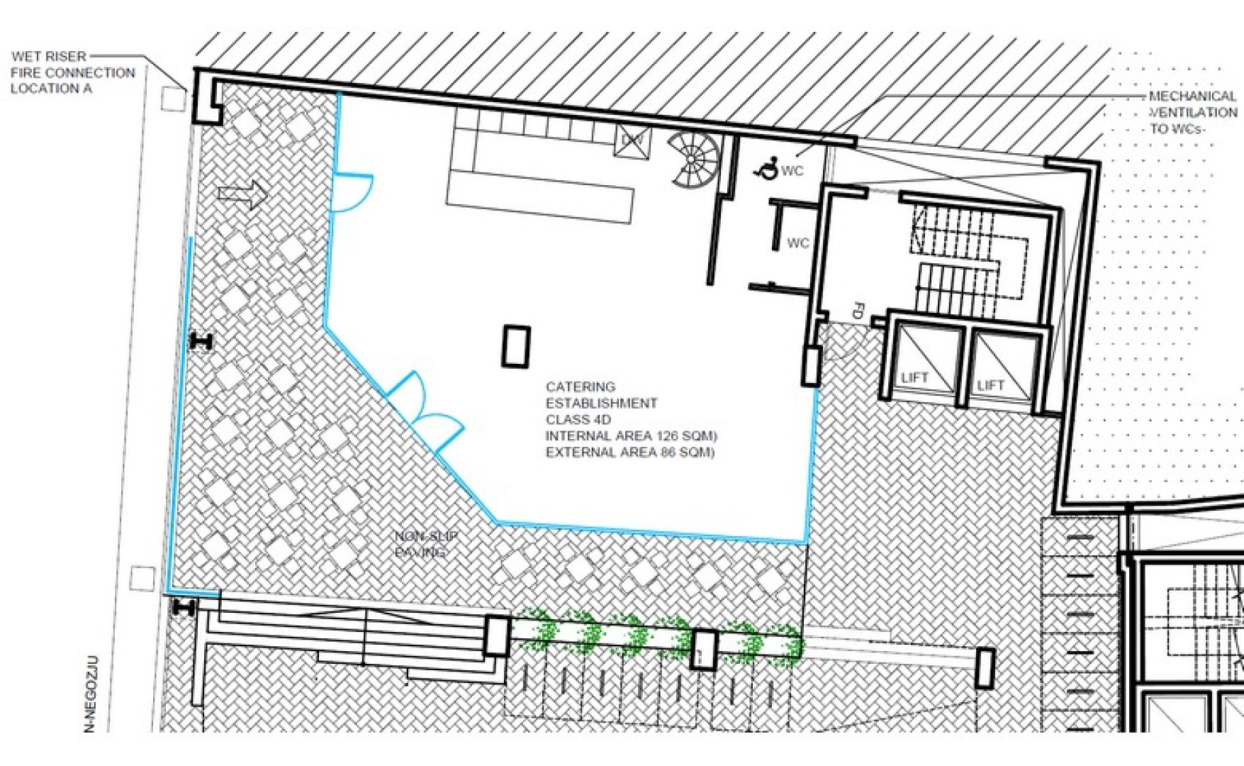
Restaurant

Ref. No: 52074

  • LOCATION: Mriehel
  • Area 58 Sq metres
  • PRICE: € 3,850.00
  • Longlet: Yes
  • Property Sale: No
New in our restaurants for rent in Malta, a commercial property in Birkirkara with class 4C permits. Covering an area of 58sqm and situated in a commercial complex.
Restaurant
Restaurant
About the area: Malta
PRICE: € 3,850.00
MORE IN THIS AREA

Enquire about this property

Our team will reach out to you as soon as possible.

    About You

    About your Property