Offices in Malta

OFFICES INMalta

SEARCH OFFICES

Office Space

Ref. No: 52497

  • LOCATION: Mriehel
  • Area 427 Sq metres
  • PRICE: € 7,718.00
  • Longlet: Yes
  • Property Sale: No
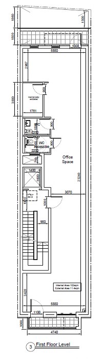
A commercial building consisting of offices for rent in Malta, that can be rented either separately or as a whole block in a nice part of Mriehel. Common parts of the building will be fully finished. Also the apertures and tiles will be finished in all the block. Facade will be finished too. As for the inside of the floors, all floors will be painted and plumbing and electricity points will be ready too. Internet and alarm points will be ready in each floor too and the bathrooms will be installed too. The following are the internal floor areas at each floor, excluding common areas, shafts and external areas: Level -1 – Archival / Storage Space – 74.4 sqm. Level 0 – Garage Space – 105.8 sqm. Level 1 – Office Space – 113 sqm. Level 2 – Office Space – 115 sqm. Level 3 – Office Space – 121.45 sqm. Level 4 – Office Space – 77.6 sqm.
Office Space
Office Space
Office Space
Office Space
Office Space
About the area: Malta
PRICE: € 7,718.00
MORE IN THIS AREA

Enquire about this property

Our team will reach out to you as soon as possible.

    About You

    About your Property