Offices in Malta

OFFICES INMalta

SEARCH OFFICES

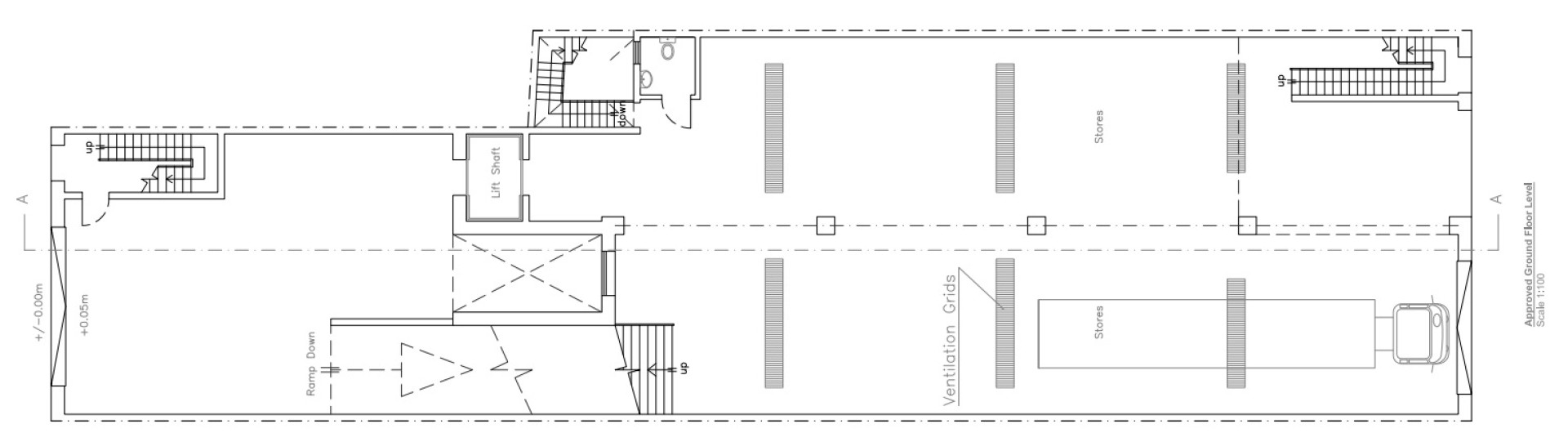
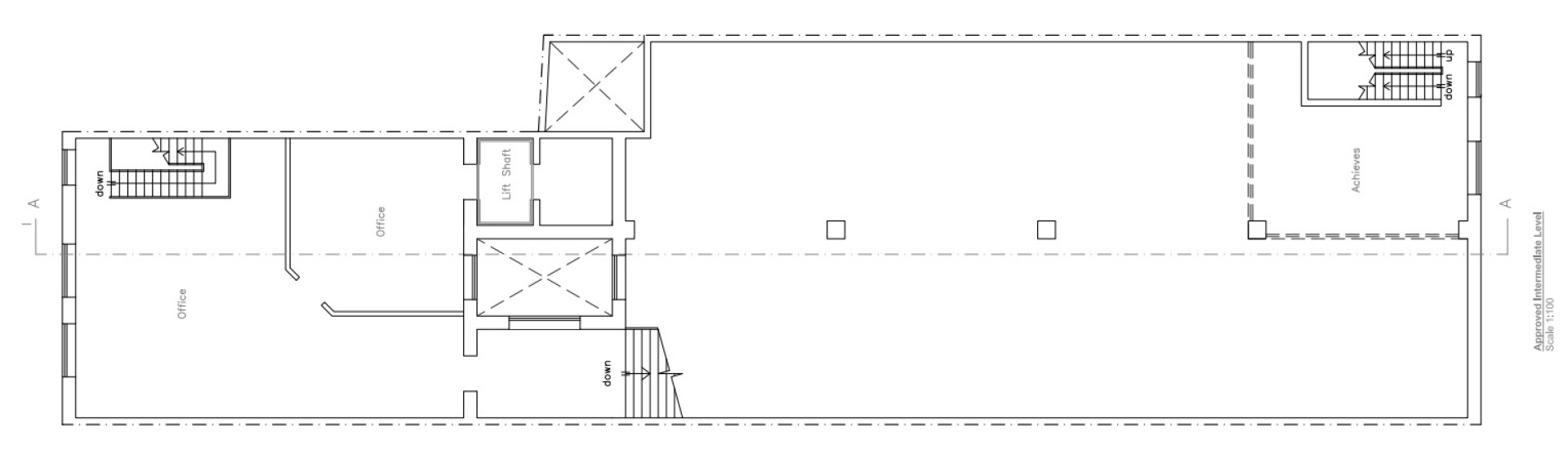
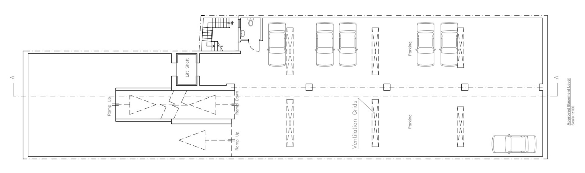
Warehouse

Ref. No: 54610

  • LOCATION: Mosta
  • Area 1600 Sq metres
  • PRICE: € 3,400,000.00
  • Longlet: No
  • Property Sale: Yes
Our estate agents in Malta are presenting this Mosta 1600 sqm warehouse/factory to let and also for sale with a backyard. - Total of 1600 sqm - Plot size 180ft x 40ft - 3 Floors 3 floors - Office Space - Good for Warehousing / Factory / Industrial - Full Industrial permit - Water Reserviour - Fire alarm, CCTV , Burglar alarm, Electric door, 3 Phase Electricity, ACs installed
Warehouse
Warehouse
Warehouse
Warehouse
Warehouse
Warehouse
About the area: Northern
PRICE: € 3,400,000.00
MORE IN THIS AREA

Enquire about this property

Our team will reach out to you as soon as possible.

    About You

    About your Property

    Offices in MaltaAdd to home screen for quick access