Offices in Malta

OFFICES INMalta

SEARCH OFFICES

Ground Floor Office

Ref. No: 58930

  • LOCATION: Msida
  • Area 600 Sq metres
  • PRICE: € 1,300,000.00
  • Longlet: No
  • Property Sale: Yes
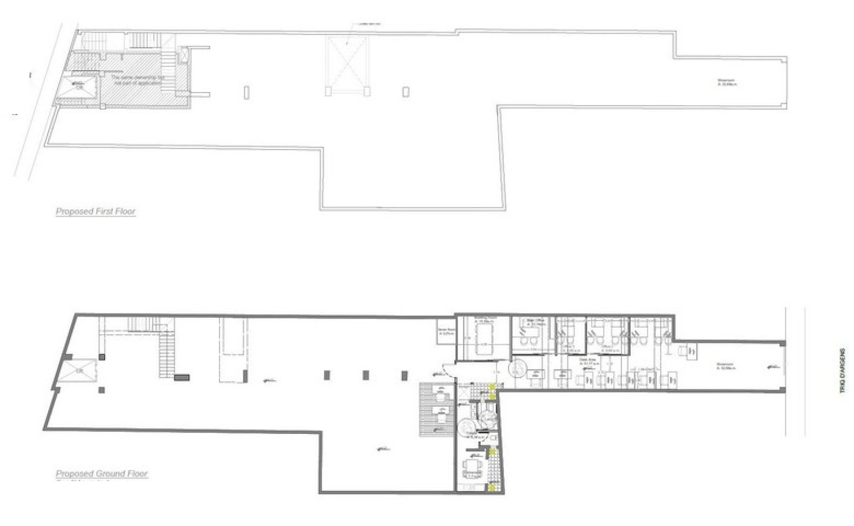
Situated at the heart of Msida, this property spans over 600m2 across two roads, boasting impeccable finishes and a complementary car lock-up garage. The space is thoughtfully designed, featuring three office cubicles, a well-equipped boardroom, a convenient kitchenette, modern toilets, air conditioning, fire detection systems, emergency lighting, a zone intruder alarm, CCTV surveillance, a goods lift, 3-phase electricity, and comprehensive connectivity with WiFi, data, and power points strategically placed throughout. Ideal for a dynamic and technologically advanced workspace.
Ground Floor Office
Ground Floor Office
Ground Floor Office
Ground Floor Office
Ground Floor Office
Ground Floor Office
Ground Floor Office
Ground Floor Office
Ground Floor Office
About the area: Central
PRICE: € 1,300,000.00
MORE IN THIS AREA

Enquire about this property

Our team will reach out to you as soon as possible.

    About You

    About your Property