Offices in Malta

OFFICES INMalta

SEARCH OFFICES

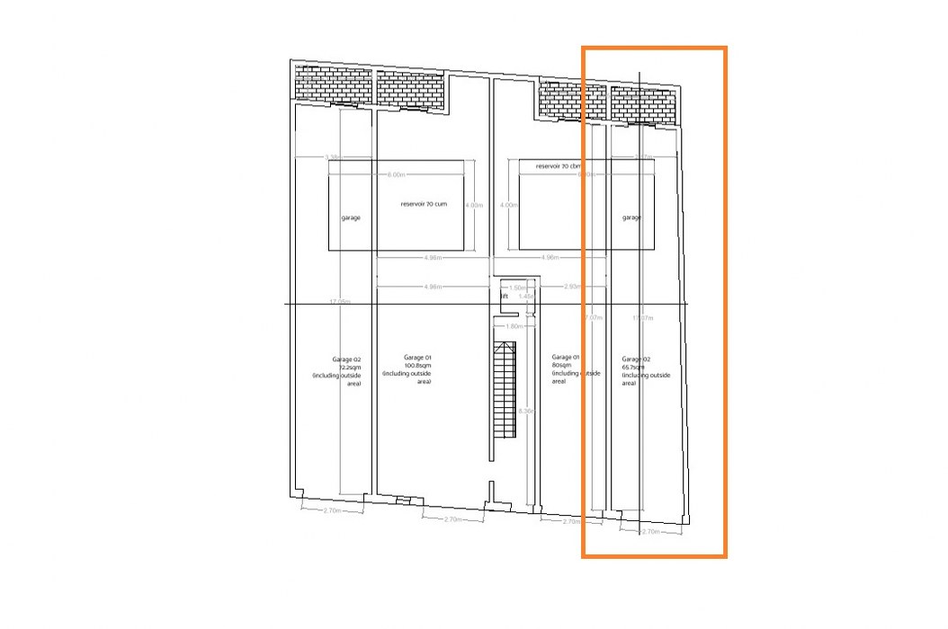
New street level garage for sale Qala, Gozo

Ref. No: 60631

  • LOCATION: Gozo - Qala
  • Area 66 Sq metres
  • PRICE: € 159,000.00
  • Longlet: No
  • Property Sale: Yes
Fantastic investment opportunity in the picturesque town of Qala, Gozo. Street-level garage sold on plan in shell form. Construction for this development is scheduled to commence in 2024.
New street level garage for sale Qala, Gozo
New street level garage for sale Qala, Gozo
New street level garage for sale Qala, Gozo
About the area: Malta
PRICE: € 159,000.00
MORE IN THIS AREA

Enquire about this property

Our team will reach out to you as soon as possible.

    About You

    About your Property

    Offices in MaltaAdd to home screen for quick access