Offices in Malta

OFFICES INMalta

SEARCH OFFICES

Prime Floriana Townhouse: Residential and Commercial Use

Ref. No: 63482

  • LOCATION: Floriana
  • Area 0 Sq metres
  • PRICE: € 1,600,000.00
  • Longlet: No
  • Property Sale: Yes
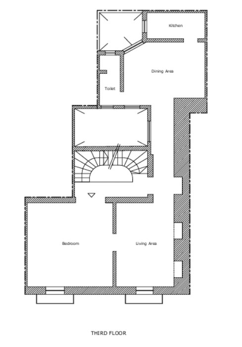
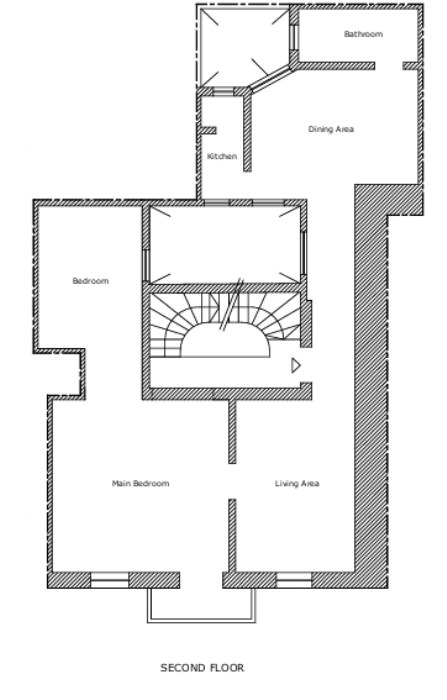
Discover the charm and potential of this exceptional townhouse in the heart of Floriana, featuring four distinct floors designed for versatile living or investment opportunities. This property offers a mix of furnished and unfurnished apartments across its second and third floors, each boasting 1 bedroom, with a guest room available on the second floor. Spanning a total area of 245 sqm, excluding the ground floor, the interior is a blend of finished and modern amenities, including utility appliances and air conditioning in two apartments. Each floor provides ample living space with separate kitchen, living, and dining rooms, and access to four front balconies offering delightful street views. Enjoy the added luxury of a roof terrace, perfect for relaxation or entertaining, and benefit from the convenience of a lift serving all floors. The property is freehold, ensuring full ownership and peace of mind. Additionally, the ground floor includes a garage, which can be easily converted into a commercial property with approved permits, presenting an excellent investment opportunity. Don’t miss out on this unique blend of residential and commercial potential in a prime location. Contact us today to explore the possibilities and make this property your own.
Prime Floriana Townhouse: Residential and Commercial Use
Prime Floriana Townhouse: Residential and Commercial Use
Prime Floriana Townhouse: Residential and Commercial Use
Prime Floriana Townhouse: Residential and Commercial Use
Prime Floriana Townhouse: Residential and Commercial Use
About the area: Central
PRICE: € 1,600,000.00
MORE IN THIS AREA

Enquire about this property

Our team will reach out to you as soon as possible.

    About You

    About your Property